
Villa con parte residenziale, in contesto centuriale rurale
Scavo e circostanze del ritrovamento: scavo Della Torre (1826)
Tecnica edilizia: muri in malta bianca con caratteristiche di notevole resistenza e ciottoli, spessi 80 cm
Decorazione musiva: tessere bianche e nere
Descrizione rinvenimenti: Nel 1826 Della Torre scava parzialmente un edificio rinvenendo “un mosaico bianco e nero, spille e fibule di bronzo, due embrici bollati, urne fittili e di vetro e monete tra cui un bronzo di Faustina giovane”
Datazione: epoca romana non meglio precisabile
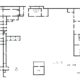
Bibliografia: Stucchi 1951, p. 105, Tagliaferri 1986, vol. II, p. 212, PR 129; pianta vol. I fig. 82, p. 254, con altra bibliografia.
Fonte: L’evoluzione delle ville suburbane di Cividale del Friuli ed il rapporto con il territorio centuriato (sec. I-VI), di Giovanni Roman, Università degli Studi di Udine.




